新理念,新機制,建設一流新平臺
——北理工材料學院先進材料實驗中心建設紀實
發布日期:2019-05-11 供稿:黨委宣傳部 王朝陽 攝影:黨委宣傳部 郭強,材料學院
編輯:王朝陽 審核:肖雄、張青山、龐思平 閱讀次數:材料科學與技術是信息、電子、自動化等高新技術與科學的基礎和先導,縱觀國內排名頂尖的理、工科類高校學科設置,材料學科均占有基石地位甚至發揮龍頭作用。近年來,北理工材料學科發展水平不斷提升,學科排名逐年攀升,不僅QS、USNews等世界大學學科排名進入世界前一百名,ESI世界排名前1%行列,還進入國家“雙一流”建設學科名單,成為北理工的重點優勢學科之一。
然而,學校材料學科不斷攀升發展之際,也面臨著多種挑戰,其中先進實驗平臺資源的日益緊張,逐漸成為學科發展的最大隱憂之一。如何破解發展中的瓶頸問題?在學校的大力支持下,材料學院寫下一張漂亮的答卷。

2018年底,北京理工大學先進材料實驗中心正式建成,這個面積1284平米,擁有總價值3000萬儀器設備資產的高水平實驗平臺,不僅充分體現了“現代化、集約式、開放型”的建設理念,也是首個學校依托學院建設的公共實驗平臺。新理念,新機制,新平臺已“嶄露頭角”,為“雙一流”建設注入強勁動力。
精謀細劃,“立制”先行

學校實驗平臺規劃建設小組召開會議
“2016年10月20日,在良鄉分析測試中心正式運行那天,校黨委書記趙長祿提出要加速打造一流實驗平臺,力爭‘十三五’期間,大幅推動學校實驗平臺建設。隨后,學校成立了時任校長助理龍騰牽頭籌備組織的平臺規劃建設工作小組,全面推進實驗平臺建設工作。材料學院精心準備,經過充分論證,最終獲批建設先進材料實驗中心。”資產與實驗室設備處副處長蘭山回憶到。
建設之初,先進材料實驗中心就擁有非常清晰的定位:立足材料科學的國際前沿,以及國民經濟和國防建設的重大需求,致力于服務新材料的制備、表征及其應用研究,并成為提升人才培養、科學研究、學術交流以及社會服務水平的重要平臺。
“材料學科處于上升的關鍵期,但人才隊伍不斷壯大與實驗室面積日益緊缺之間的矛盾;面向國際學術前沿與缺乏先進實驗平臺支撐之間的矛盾;標志性成果全鏈條創新與獨立封閉的研究條件之間的矛盾逐漸凸顯,建設這一平臺就是以先進實驗條件建設為突破點,以體制機制創新為切入點,瞄準材料科學世界前沿提高加速度!”材料學院院長龐思平這樣分析了實驗中心建設的初衷。

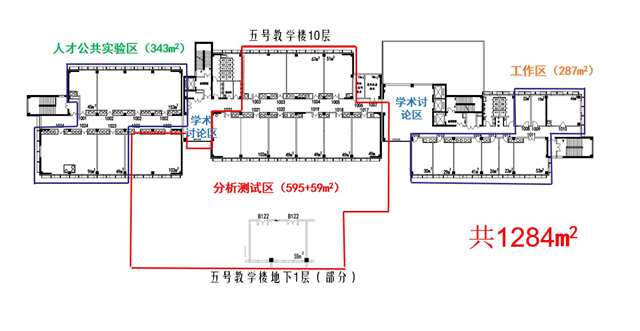
材料學院先進材料實驗中心平面圖
面對“雙一流”建設,學校始終堅持大力投入,通過資源調整,在中關村校區5號實驗樓為先進材料實驗中心提供了充足的建設空間,還劃撥了1000萬元的專項建設經費。雖然“糧草充足”,但是在實驗中心建設之初,學校卻堅持“穩中求進”,把堅持精謀細劃作為了建設高水平公共實驗平臺的先決條件。

材料學院相關負責人赴西北工業大學調研
從2016年底啟動論證,直到2017年暑期實驗中心才正式立項,在論證過程中,實驗平臺規劃建設工作小組牽頭召開論證溝通會十余次,材料學院優化建設方案十余版。在制定建設方案期間,為打造一流實驗室,本著“集眾家之長,取自我之道”的理念,材料學院書記、院長帶隊到清華大學、北京大學、上海交通大學、西安交通大學、西北工業大學等多所知名學校進行專項走訪、調研、取經。從實驗室的硬件建設、制度保障、人員配備、信息化建設,到實驗室的每一個小細節,都一一關注和細細詢問。在大量詳實調研的基礎上,建設團隊心里越來越有底,實驗中心的建設藍圖逐步清晰和明朗起來。
材料學院的建設方案不僅包括環境改造和儀器設備等“硬件條件”建設方案,還包括了花大力氣完善細化的管理機制等“軟件條件”建設方案。共制定了管理辦法、入駐協議、對外服務辦法、門禁系統管理辦法、儀器托管管理辦法、學生自主上機辦法、應急處理程序等大大小小20多項制度,整套管理文件加起來足有200多頁。
除了管理制度的科學嚴謹,實驗中心的運行還充分體現了“服務”理念,也就是始終將服務“雙一流”建設作為自己的使命。這一點,材料學院張加濤教授頗有感觸:“實驗中心建成前,我們在往校外送樣品和等待測試上要浪費很多寶貴的時間。自從中心建成后,制備出新材料樣品馬上送到10層,很快就能在中心的測試平臺進行XRD、XPS、紅外光譜等測試,大大縮短了測試的周期,提高了科研效率。而且,實驗中心非常重視師生的反饋意見,會根據我們的需求及時調整設備及測試項目。大家真切感受到了擁有自己的測試實驗平臺的便利性。”
除了提供設備資源的集約化支持外,實驗中心還精心設計,對優秀科研成果給予獎勵。“我們采用‘分級式’管理模式,將用戶根據成果產出及信譽度等指標分為不同星級,對于成果產出多的用戶,中心可以為測試費用‘免單’或優惠,這樣的激勵機制就是為了更好地帶動成果產出,營造良好的科研學術氛圍。這也充分體現出服務一流建設是中心的工作目標。”材料學院副書記、副院長劉艷這樣介紹。
“小投入”撬動“大資源”
材料科學不能“紙上談兵”,對材料結構、性能和表征等研究都離不開現代化的分析測試手段,因此高水平的儀器設備是提升科學研究水平的前提。“材料學科的發展依賴儀器,都說巧婦難為無米之炊,其實做飯的‘鍋’也很重要!”張加濤這樣比喻道。
對于擁有價值5個億儀器設備的材料學科群來說,盤活設備是一項極為浩大的工程。面對現存設備中能夠提供公共服務的儀器設備被大量分散在各個課題組,開放程度不高且無法統一管理的現狀,材料學院打破傳統思維,認真思考如何用“小投入”撬動“大資源”,首先通過“利舊與共享”托管學院各實驗室的一部分設備,推動大型儀器設備開放共享,同時根據學科發展和材料分析測試研究體系的需要,使用學校支持資金購置新儀器。

材料學院討論儀器托管管理辦法
“確立理念、統一思想很重要,要提前把道理和老師們講清楚。設備托管在實驗中心,第一可以節約自己的實驗空間,第二不必承擔高昂的設備維護費用,第三,也是最重要的,設備有專人管理了,功能開發更充分,可以為更多人提供服務,一舉多得。老師們理解了這些,自然就會配合工作。因此,在征集儀器設備的時候,困難沒有想象中的大,目前中心已經有托管設備17臺。”劉艷介紹到。

實驗員宋廷魯為學生講解XPS樣品制樣技巧
X射線光電子能譜(簡稱XPS)是通過光電效應原理獲得物質表面化學組成的一項技術,也是材料分析中的一項基本測試。材料學院郝建薇教授課題組多年來一直負責學院微區掃描XPS設備的運行和維護。“XPS的利用率很高,不光課題組內使用XPS進行材料表面分析,校內外的很多課題組都將樣品送來測試。”課題組博士生石慧介紹說,她也是這臺設備的主要操作人之一。正是這樣一臺“熱點”設備,在實驗中心成立之后,郝建薇站在學科發展角度和設備日常使用實際,將XPS設備交給實驗中心管理。此后,這臺XPS設備不僅得到了規范統一管理,設備保管使用環境也大大提升,保持了更好的工作狀態,在方便校內外課題組送樣測試的同時,大大提高了儀器的使用效率,更為重要的是設備的托管節約了師生的工作精力,可以讓課題組更好地聚焦于科學研究本身。
隨著老師們對這種“托管模式”的逐步認可,除了“托管”原有的舊設備,在采購新設備時,老師們首先想到的就是交到實驗中心統一管理。材料學院吳川教授將一臺新購置的臺式掃描電鏡直接托管到實驗中心,他表示:“這臺設備是我們課題組開展科研工作所必需的,但并不能達到每天使用的頻率。據我所知還有很多課題組有測試需求,于是我們將設備托管到實驗中心共享,既方便了大家又避免了重復購置。實驗中心還為設備配備了一名具備多年電鏡操作經驗的實驗員老師,保證設備隨時處于良好的狀態。我們課題組的師生在使用設備時也能得到實驗員老師的耐心專業的指導。今后,如再購置分析測試類設備,我還是希望能托管到實驗中心,最大限度地開放共享。”

400M核磁“特聘”管理員黃木華
在實驗中心,儀器設備不僅可以實現“托管”,還可以實現“專管”。材料學院黃木華特別研究員對核磁共振波譜儀有著近20年的使用經驗,實驗中心建成后,他成為一臺400M核磁的‘特聘’管理員。“特聘”的意義在于,黃木華不僅可以更加方便地使用儀器,也憑借其在核磁方面的專業知識和經驗,肩負起儀器的日常維護、測試服務、技術咨詢和新功能開發,還為本科生開設核磁方面的通識選修課。有了實驗中心的支撐,黃木華也成為深耕核磁技術領域的專家,不僅積極參加行業的學術交流,還被推選為北京理化分析測試學會波譜學會分會的理事兼副理事長。“實驗中心不僅要提供分析測試服務,還要利用高水平人才來激活設備、盤活設備,‘特聘’管理員的作用就在于此。”龐思平表示。

1.實驗員彭祿做動態熱機械性能分析 2.實驗員李紅進行X射線應力分析儀樣品安裝
3.實驗員范蕾操作BELSORP maxll 全自動多站式微孔材料物理吸附分析儀 4.實驗員閻承偉進行差式掃描量熱儀測試
截至目前,初建成的先進材料實驗中心的分析測試區就巳擁有30臺公用大型設備,總價值3000萬,通過“利舊與共享”,實現了1000萬“小投入”撬動3000萬“大資源”。在這30臺設備中,既有通用型儀器,又有瞄準國際前沿的高端高值儀器,可提供核磁、電鏡、X射線系列、元素分析、色譜、光譜、力學和熱性能、聚集和吸附性能等分析測試服務,已面向全校開展了分析測試類服務1000余次。

實驗員陳寒元正在和學生用掃描電子顯微鏡測試樣品
實驗中心現有5名專職實驗人員,全部具有碩士及以上學歷,設備管理經驗豐富。談到在實驗中心的工作感受,陳寒元老師說道:“作為一名實驗技術人員,能在這個平臺工作,我感到很幸運。實驗中心工作環境干凈整潔,管理嚴格規范,同事團結熱心積極向上,工作氛圍風清氣正。中心為我們提供了優質的工作平臺及經常性的校內外培訓機會,我學習到多種測試技能,并掌握和精通幾項專屬測試項目,自己的特長和興趣得到了很好的發展。”宋廷魯老師也深有同感:“在參與實驗中心建設過程中,我切身感受到了學校和學院上下一心共建一流平臺的決心和力度,也使得我們這些在中心從事具體實驗工作的老師對待工作絲毫不敢放松。看到測試量與日俱增,收到師生們眾多好評,大家雖然工作忙碌卻很有獲得感。同時,我和中心的其他老師也不斷提升自己的工作技能,與領域內的專家經常溝通,也申請了校內開放實驗課程,希望能向著專家型實驗技術人才的方向努力,與平臺共成長。”

第11期“材料分析測試技術學堂”舉辦,MicrotracBEL公司資深工程師為師生講解物理吸附分析技術的基本原理及最新應用
實驗中心聚焦人才培養,搭建了“上機操作、課程實踐、講堂學習”三位一體的基于實驗平臺的學生實驗能力培養模式。實驗中心的儀器設備面向全校學生開放,經過培訓的學生可預約自主上機,在提升學生實驗能力的同時,也提升了設備在非工作時間的使用率。對于教學工作,實驗中心實行“免費使用”的支持政策,鼓勵老師們依托中心的儀器設備資源開設課程。目前,實驗中心已開設了《有機材料結構分析實踐》《無機材料物理性能與表征技術》《核磁共振波譜技術在先進材料研究中的應用》等多門課程,為教學工作注入了新的活力。學校學術講座眾多,卻鮮有分析測試技術類的講座,實驗中心首創“材料分析測試技術學堂”,邀請國內外分析技術領域的專家開設系統化高水平的講座,目前已成功舉辦11期,深受廣大師生歡迎,填補了學校高水平實驗技術系統培訓的空白。
為“青椒”成長培植沃土

先進材料實驗中心公共空間
近年來,在學校實施“強師興校”戰略的背景下,材料學院不斷加大引進高層次人才的力度,學科人才隊伍逐漸壯大。但由于缺乏公共研究平臺、大型儀器分散、配套研究條件建設周期長等,不利于青年人才科研學術工作的開展。因此,改善科研條件、增加辦公面積、改革實驗室機制,成為人才隊伍建設和學院學科發展迫在眉睫的工作。

先進材料實驗中心人才入駐簽約會
先進材料實驗中心在建設時,試點建設公共實驗室,打破了“固定”實驗室分配模式,采取“流動”使用模式,按照“條件準入、簽約入駐、流動使用”的分配方式,遵循“準入退出、流動使用、統籌管理、規范運行”的管理原則,為優秀青年教師和高層次引進人才快速啟動研究工作提供階段性實驗用房。中心建成不到三個月,已有8名青年人才和1名客座教授簽約入駐。校長張軍在視察實驗中心時,對這種模式給予了充分認可。“我們特別注重對青年人才的支持,著力保持公共實驗平臺的流動性和活力。”材料學院黨委書記張青山介紹說。

1.學生進行功能材料合成實驗 2.學生在觀察有機染料在氙燈照射下的降解情況
3.學生在太陽光模擬器上準備光催化實驗 4.學生在進行納米自組裝材料樣品的制備
“我在加州大學洛杉磯分校(UCLA)讀博時,就體會到建立這樣一個實驗平臺的便利性,它可以讓我們一邊做合成,一邊迅速地做分析,因此當我聽到學院要建立這樣的一個實驗中心時非常高興,得知自己可以入駐更是激動不已。”材料學院陳棋教授這樣分享自己的感受,“公共實驗室就像是一個流動性質的孵化平臺,幫助青年教師成長、成熟。這是‘青椒’的成長沃土!”
材料學院李霄羽教授也是公共實驗室的第一批入駐者,“我所從事的研究,包含了很多不同的方向,有機合成、高分子合成、高分子組裝、材料性能測試等都有所涉及,因此對實驗室的空間和條件有所要求。當入駐公共實驗平臺的時候,我感到無比激動,這里完全可以和以前在國外所見過的世界一流實驗室條件相媲美,覺得研究團隊終于能有足夠的地方開展實驗,自己終于能大展身手!”

張加濤、陳棋、李紅博、鐘海政公共實驗室一角
除了提供公共實驗平臺外,實驗中心還“用心”地將研究方向相近的教師集中在相近區域做“鄰居”。例如研究半導體納米晶材料的張加濤教授,研究鈣鈦礦、太陽能電池的陳棋教授,研究納米晶太陽能的李紅博教授和研究量子點、OLED的鐘海政教授就是同一個實驗室大區的“鄰居”。這樣一來,不僅儀器設備可以更好地共享使用,也更容易在相鄰交往中迸發出交叉創新的火花。
“拎包入住”的實驗條件、“一站式”集成材料合成與表征的實驗模式、“年輕化”“國際范”的交叉融合氛圍,使得實驗中心建成不久,就高效催生了一批高水平的研究成果。張加濤教授課題組在金屬@半導體納米異質結構的光電催化、電催化等研究方面取得了系列進展,發表了包括Adv. Energy Mater.、Nano Energy、 Adv. Functional Mater.等頂級材料類雜志文章;鐘海政教授受邀擔任《The Journal of Physical Chemistry Letters》副主編;陳棋教授課題組在國際頂級學術期刊《Nature Communications》上發表了題為《Strain engineering in perovskite solar cells and its impact on carrier dynamics》的研究論文;李霄羽教授在國際著名期刊Polymer Chemistry,Angewante Chemie International Edition,Nature Communications上各發表了一篇研究論文,其中Polymer Chemistry上的論文還被選為了封面文章;何春林教授在新型含能材料研究方面取得重要進展,相關成果發表在Journal of Materials Chemistry A期刊并被選作熱點文章。
新時代,新使命,新征程。面向“雙一流”建設,先進材料實驗中心的建設,僅是學校下大力氣、加大力度建設一流實驗平臺的縮影,也是學校深化綜合改革、深入推進“雙一流”建設的具體舉措之一。建設中國特色人民滿意世界一流大學,北理工接續奮斗、久久為功!